Hansjörg Göritz  Studio - Works

Waldersee Park Lofts

Hannover, Germany

2005

 

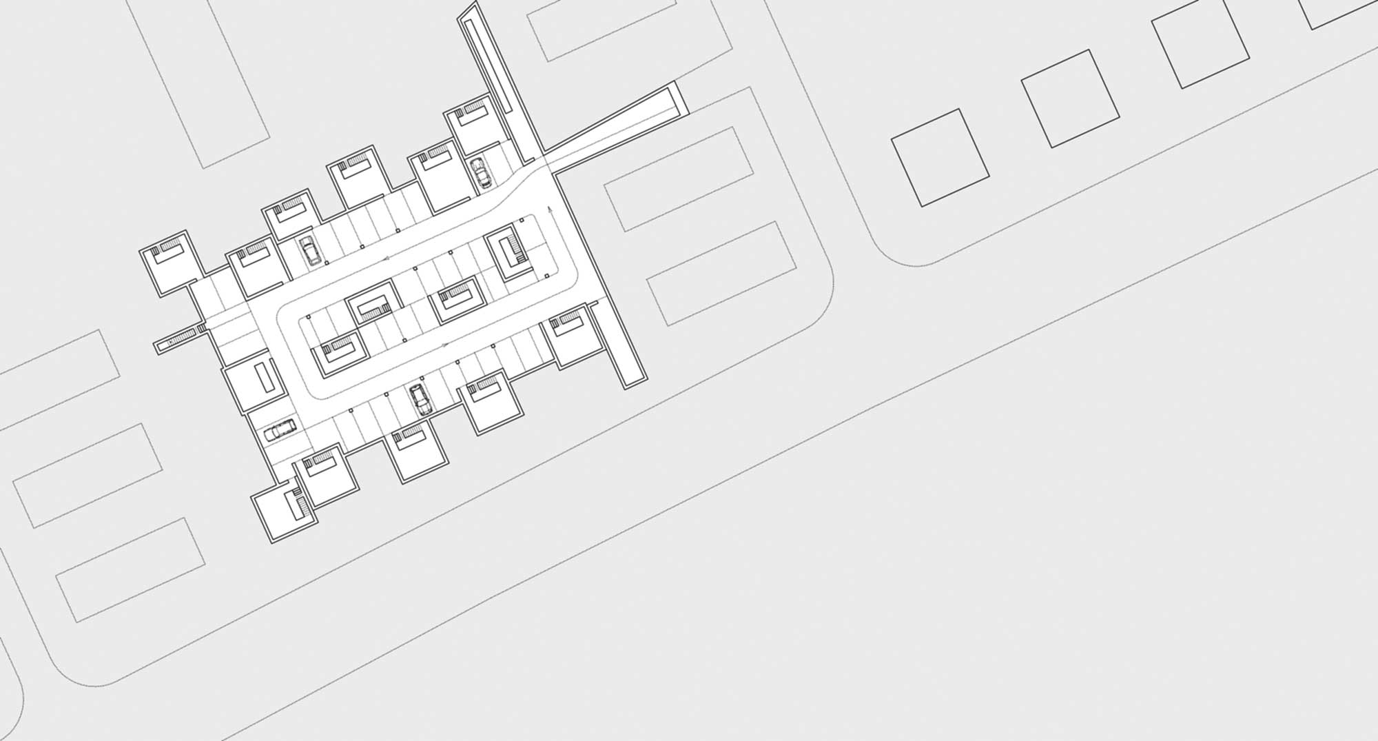
Eilenriede Park is one of the city's urban assets, with Waldersee avenue providing upscale urban living at the park's periphery. The deep site required a refined scheme to accomplish refinement with density and vistas. Ultimately this project is beyond conventional block or rows of flats, rendering an innovative set of triple towers to allow participation for all to the privileged location.

 

Interpreting generic typologies, combining urban block and villa, this dissolute composition of tower-like lofts is comparable to follies in a landscape, with light high-stem trees, framed with hedges. Stacks of exquisitely simple one-room luxury, turn their backs and shoulders to each other for privacy, opening their fourth facade fully to the park. Housing volumes contrast with these garden spaces, providing intimacy and a choice of different grades of privacy balanced with views in between alleylike flights, and expansive, full-facade glass mirrors total enclosure vice versa.

 

 

In collaboration with

Günther Despang, Martin Despang

 

Project Team

Stefan Höpfinger, Matthias Buchmeier, Jörg Steveker